Times Square
Sublet Office Space Rental
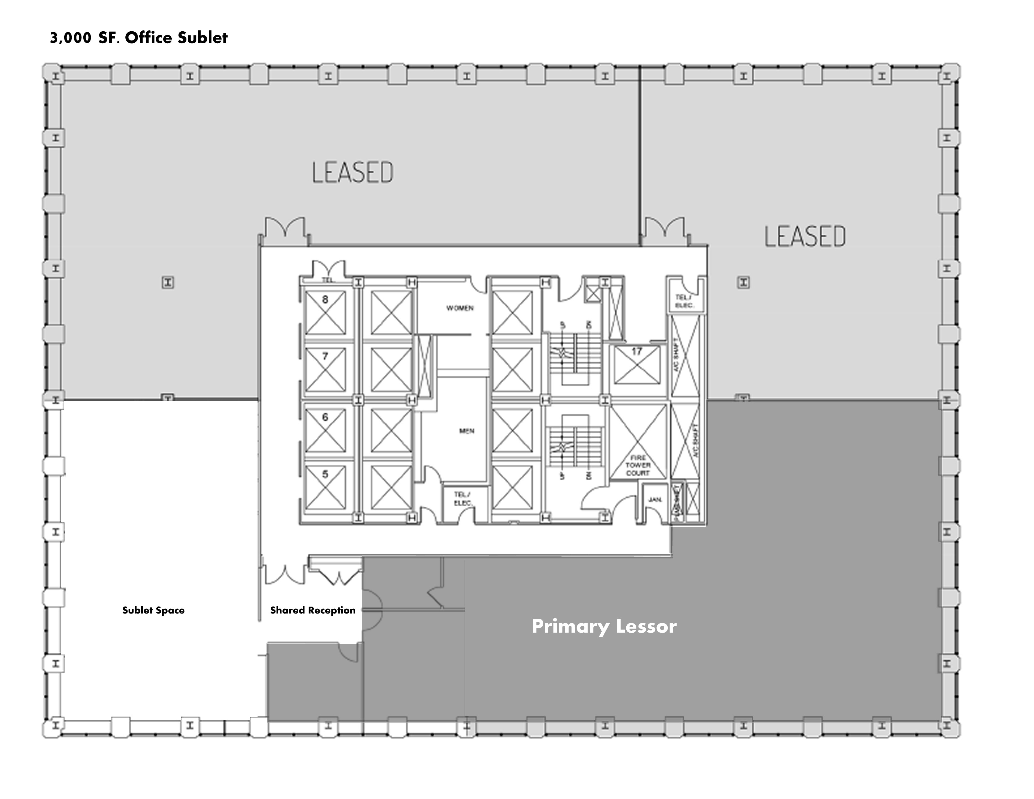
3,000 SF. Sublet Office Space - Located on Broadway between 42nd & 43rd street in the heart of the Times Square.
Sublease in a Class-A Midtown Manhattan building within a bright commercial space that offers a mix of spacious private windowed offices & contiguous open areas all layed out in an efficient work environment. The space is shared with an established creative production company with offices here in NYC and in Los Angeles. The installation features a mix of some open space and private offices all of which enjoy modern, creative finishes that include glass fronted offices, new carpets, new lights, and finished ceilings. This sublet space includes the addition of phones & furniture which can be made available upon request. The subtenant will have access to (2) conference rooms, an eat-in kitchen, and reception area with guest seating. In total this shared office space provides all thats needed to run a business while maintaining your momentum during your transition of offices. Finding furnished sublet offices in Manhattan today has become more challenging as such options are at an all time high.
Asking Rent Available Upon Request (Call or Contact)
"Times Square continues to attract and retain marquee new economy tenants. Since 2010, the largest employment gains in Times Square have been in Technology, Advertising, Media, and Information (TAMI) firms."
If you have any questions or would like to schedule tour of the space, or you would like to see more office space listings options for Accounting, Personnel Temp Staffing, Hospitality Staffing, Production Studios (Film Prouction Companies and Music Record Lables), Casting Offices, Modeling Agency, Television, Entertainment Law, and Corporate Headquarters for Television, Film, and Internet Content Production in Manhattan; please email or call me at any time.
For further information or to set up a tour of this office space, please contact me.
- Licensed Real Estate Broker (REBNY Member)
- Set Up A Tour
- Receive an Office Space Report (on other comparable spaces)
Jonathan Anapol
President
Phone: 212-268-8043
Fax: 212-268-5742
Special Features
- 3,000 SF. Sublet Office Space
- (3) Glass Fronted Private Offices
- (1) Open Work Area (able to accomodate from 6 to 10 desks)
- (1) Conference Room (within your sublet / can be used as an extra Private Office)
- Corner Space with Windows on Two Sides w/ Good Sunlit Exposure
- Shared Usage of (1) Conference Rooms, Eat-in Kitchen, and the Reception Area
- Chairs, Desks, & Phones Included - Upon Request
- All new finished, clean modern office installation
- Times Square Location overlooking Broadway
Floor Plans
Helpful Links
Noteable Companies in Times Square Include
- Disney
- Comedy Central
- MTV Studios
- Logo TV
- Paramount Network
- Nickelodeon Digital
- VH1 Studios
- WarnerMedia
- Cinemax
- CNN New York City Studio
- HBO Studios
Just to name a few... call or contact





