Bryant Park Area
Medical Office Space between 38th and 39th Streets
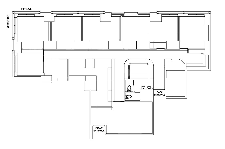
4,200 SF. Fifth Avenue Medical Office Space now available for direct lease
Step off the sixth floor onto a marbled corporate elevator lobby that flows through a set of high quality secure full-length glass double doors with your medical practice / name brand emblazed at this entrance. Directly forward a partitioned reception desk and seating seat meets you; this section of the office features polished hardwood floors, narrow sidelight glass, with a room of space here for roomy guest seating.
Moving onward the space flows linearly and splits at the office’s administrative secretarial or as a nursing station; here the flow splits left to right as a t-intersection. Here the office is broken down into 5 to 6 spacious private offices or exam rooms – these individual rooms can be utilized as multiple executive offices, and or consultation rooms. Furthermore this unit also offers conference room, staff room, and a kitchenette that helps round out the entire office and most professional uses therein.
The unit is benefitted by a line of windows that overlook down from the front of the building property onto Fifth Avenue; by its sixth floor corner position, the space enjoys good sunlight through the day with exposure coming from the west and south. Beyond the prosaic this medical space contains plenty of storage room peppered throughout and enjoys high quality material in its construction / layout having been built in 2002 – showing little wear in superb condition today.
Features
• 4,200 SF. Direct Lease Space
• 5 to 6 Spacious Offices or Exam Rooms
• (2) Large Consultation Rooms
• (1) Large Secretarial Area or Nursing Station
• (2) Single Occupant Restrooms
• Kitchenette
• Plenty of Storage
• Corner Office with Windows overlooking both Fifth Avenue and 38th Street
• ADA Compliant Space
• Lease Term 5 to 10 Years
• 24/7 Building Access
• Attended Building Lobby
• Mixed-Use / Six Story (ONLY) Commercial Building with (2) Passenger Elevators
• Ideal Commercial Space Rental for either Medical or Office use
Ideal use for medical specialty such as; Dental, General Practice, etc.
Contact Broker:
Stanley Piesh
Senior Managing Director
212 594 7354 Direct
Email
Stanley


